Cambuslang Libraries update: some positive steps but lots of questions
Many thanks to everyone who came along to the protest at Cambuslang Gate yesterday – it was great to see so many people of all ages from across the community supporting the principle of public library services for all. We appreciate too the cross-party support from...
Throwing the book at South Lanarkshire Council: authors support rethink on library closures
Concern, upset and opposition to the planned closure of libraries by South Lanarkshire Council are spreading far beyond Cambuslang. Big-name authors in Scottish literature are rallying round to support the protest against the proposed library closures and to urge...
Consultation on closure of Cambuslang Library
South Lanarkshire Leisure and Culture (SLLC) are running a two-week survey on closing Cambuslang & Halfway libraries and three community centres, part of a huge programme of cuts to leisure & community services in Cambuslang and Rutherglen, as well as...
Our Cambuslang Community Activity Grant Scheme for 2024 is now open – until 29 February 2024
Community activity grants are now available for community groups, clubs and individuals in Cambuslang West. Grants of up to £500 can be awarded to projects that enhance the quality of life and promote community spirit for local residents. The grants are provided by...
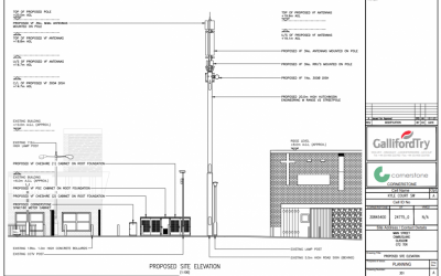
Consultation on a mobile phone mast on Cambuslang Main Street
On behalf of Virgin Media, the telecoms infrastructure company, Cornerstone and agent Galliford Try Telecoms, are looking for a suitable telecommunications site for a mobile phone mast and other facilities in Central Cambuslang. The site for the mast – which would be...
National Autistic Society need volunteers in Cambuslang!
Could you give some time each week or month to support autistic adults, children and their families in the Cambuslang area? The South Lanarkshire branch of the National Autistic Society need more volunteers to help run support, information and social activities...
South Lanarkshire Council consultation on budget priorities – deadline 8 February!
South Lanarkshire Council (SLC) are consulting on their budget for 2023/24 and there is the prospect of significant cuts to some vital Council services. We are providing a link to the budget consultation here (which has a deadline of 8 February 2023) and further...
Macmillan need Cambuslang volunteers!
Macmillan Cancer Support no longer have a service available in Cambuslang due to a lack of volunteers in our town, forcing them temporarily to close the Cambuslang service and refer clients to East Kilbride. This is hugely disappointing as Macmillan provide such an...
Cambuslang Calendar 2023 now on sale!
Our very first Cambuslang Calendar for 2023 is now on sale! The calendar contains beautiful pictures by professional photographers showing our town and its parks at their best. All profits to local charities. The calendar is available now from Pandora's Box on the...
What is going on with Cambuslang Library and Money Matters?
What is going on with Cambuslang Library? Why is it not fully open? When will Money Matters resume a full service? For 9 months, Cambuslang Community Council have been trying to find out why Cambuslang Library has not fully opened. In the Spring, other local libraries...









